Vivienda gestionada por:
Vendido
Valencia, PADRE ALEGRE 5
63.000 € Ha bajado 2.000 €
Descargar PDF Calcular hipoteca
%
años
Calcular

Dale rienda suelta a tu imaginación

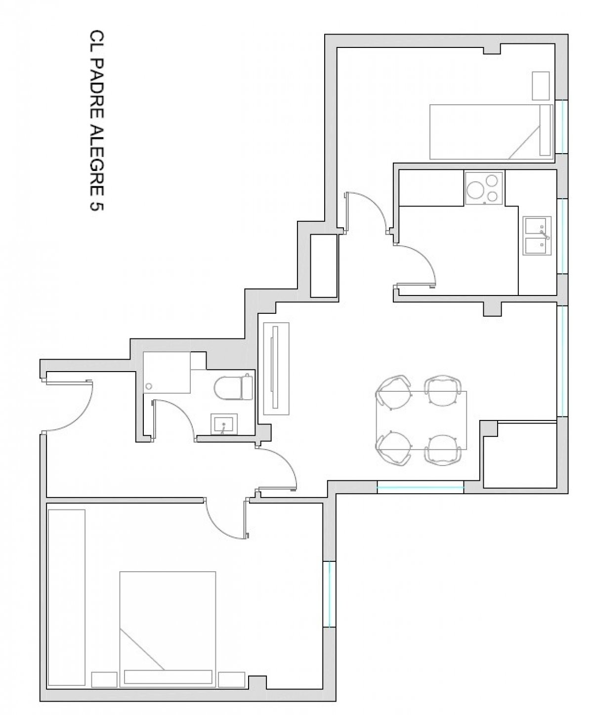
2 habs. 1 bañ. 48.00m2 Ref: FNG-08019B
Si eres de los que estabas esperando un piso económico para hacerlo a tu gusto, con tu distribución, con tus materiales, acabados.. . esta es tu oportunidad.
Todo un lienzo en blanco que colorear. Actualmente dispone de 2 dormitorios y 1 baño. Contaba con un balcón que se le incorporó al salón.
Muy luminoso y tranquilo ya que se encuentra en una de las zonas más tranquilas de Benimaclet. Eso sí, junto al tranvía y supermercados.
No dejes pasar esta ocasión y ven a verlo antes de que se te adelanten.
Si eres agente inmobiliario y quieres visitar la vivienda con un cliente, no dudes en contactar. Estaremos encantados de atenderte. Juntos, sumamos.
No obstante, esta agencia ha sido contratada para gestionar la venta de la vivienda de forma exclusiva, garantizando un servicio de calidad, sin interferencias de terceros. Por este motivo, se ruega no molestar a los propietarios, a los ocupantes del inmueble o a los vecinos.
Muchas gracias por tu comprensión.
El precio ofertado no incluye impuestos y gastos de compraventa, ni honorarios de la agencia inmobiliaria.
El anuncio no es vinculante, puede contener errores.
Leer más

Características

Tipo
Piso
Habitaciones
2
Baños
1
Planta
3
Superficie construida
48.00m2
Orientación
Noreste
Estado
Para reformar
Carpintería interior
Sapeli
Carpintería exterior
Madera
Antigüedad
1963
IBI
85.00€
Gastos de comunidad
64€ al trimestre
Tipo exterior
Exterior
Más características

Extras

Califcación energética Aportado
Consumo kW h/m2 Año
Emisiones Kg CO2/m2 Año
A
Más eficiente
B
C
D
E
F
44
G
Menos eficiente
233
Elige tu oficina
Siempre podrás cambiar la oficina, desde nuestra Web. En la parte superior izquierda.

Las cookies son importantes para ti, influyen en tu experiencia de navegación. Usamos cookies técnicas y analíticas. Puedes consultar nuestra Política de cookies. Al hacer click en "Aceptar", consientes que todas las cookies se guarden en tu dispositivo o puedes configurarlas o rechazarlas.

Aceptar Configurar Rechazar