Vivienda semireformada, ideal para comenzar una nueva etapa
2 habs.
1 bañ.
65m2
Ref: ALB_2039
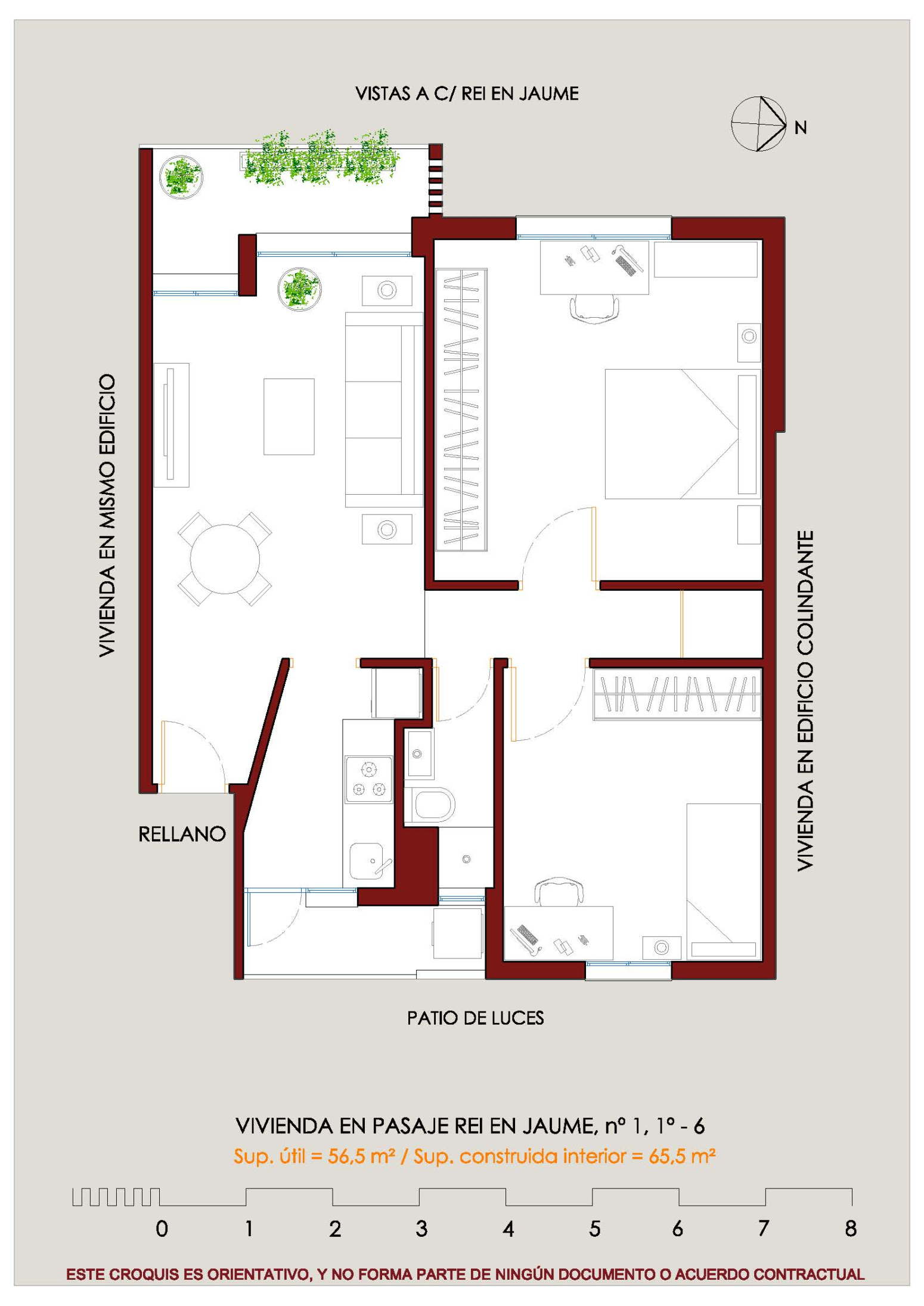
Piso situado en la primera planta, sin ascensor, de un edificio construido en el año 1960.
El piso cuenta con una superficie construida de 65 metros cuadrados y aproximadamente 56 metros cuadrados útiles, optimizados de manera eficiente para proporcionar un ambiente acogedor. La propiedad dispone de un luminoso balcón con salida desde el salón-comedor, un baño, cocina con salida a galería y dos habitaciones dobles (originalmente eran 3 habitaciones), este espacio es ideal tanto para parejas como pequeños núcleos familiares que buscan establecer su hogar en una ubicación privilegiada.
Su localización es uno de los puntos fuertes del inmueble. La cercanía a la estación de metro Peris Aragó proporciona una gran ventaja para aquellos que valoran la rapidez y eficacia en sus desplazamientos. Además, la zona cuenta con múltiples líneas de autobuses y parada de taxi, facilitando el acceso a distintos puntos de la ciudad y sus alrededores de manera cómoda y eficaz.
El barrio en el que se sitúa la vivienda es conocido por su variada oferta de servicios, incluyendo supermercados, tiendas locales, centros educativos y una oferta gastronómica diversa que invita a disfrutar de la gastronomía local en sus múltiples restaurantes y bares. Además, la proximidad a espacios verdes proporciona, también, la posibilidad de disfrutar de actividades al aire libre.
La vivienda cuenta con una reforma de suelo y zonas húmedas, no obstante ofrece un sinfín de posibilidades de personalización, permitiendo a los nuevos propietarios adecuarla a su gusto personal y necesidades específicas.
Ya sea que esté buscando su primera vivienda, una inversión inmobiliaria segura, o simplemente un cambio de aires, esta es una oportunidad que no debería dejar pasar. Su localización estratégica, características acogedoras y atractivo precio hacen de esta propiedad una opción irresistible.
A los interesados en visitar este encantador piso y descubrir en detalle todo lo que tiene para ofrecer, se les anima a concertar una visita. Será durante esta visita cuando podrá apreciar personalmente el potencial y el encanto de este inmueble singular, donde se fusionan confort, conveniencia y una ubicación envidiable.
Póngase en contacto cuanto antes para obtener más información o concertar una cita. Su futuro hogar le está esperando.
------
Agencia Registrada con el Nº 2960 en el Registro Obligatorio de Agentes Inmobiliarios de la Comunitat Valenciana, según el DECRETO 98/2022, de 29 de julio, del Consell, por el que se regula el Registro de Agentes de Intermediación Inmobiliaria de la Comunitat Valenciana.
La documentación del inmueble ha sido revisada y estimamos que reúne todos los requisitos necesarios para ser comercializado.
El precio ofertado no incluye impuestos, gastos de compraventa ni honorarios de la agencia inmobiliaria.
Las medidas aquí expuestas han sido obtenidas del Catastro.
El anuncio no es vinculante, puede contener errores.
¿Tienes alguna duda? Consúltanos.
***
Los vendedores han confiado en este equipo para gestionar la venta del inmueble de forma exclusiva. Como no puede ser de otra forma, garantizamos un servicio de calidad, actuando en todo momento de forma transparente, ética y profesional. Así pues, se ruega la no interferencia de terceros, y sobre todo, no molestar a los propietarios, a los ocupantes del inmueble o a los vecinos. Muchas gracias por tu comprensión.
Leer más