×

Advertencia

Joomla\CMS\Cache\Storage\FileStorage::_deleteFolder Fallo borrando f9f0a870444b1414a7e6f0d0578e7d6d-cache-com_k2-81509068d56f0ef53a8c74c01d4604bc.php
Vivienda gestionada por:
Vendido
Valencia, MARCELINO GINER 13
107.000 € Ha subido 0 €
Descargar PDF Calcular hipoteca
%
años
Calcular

Sólo Benimaclet te ofrece esta rentabilidad

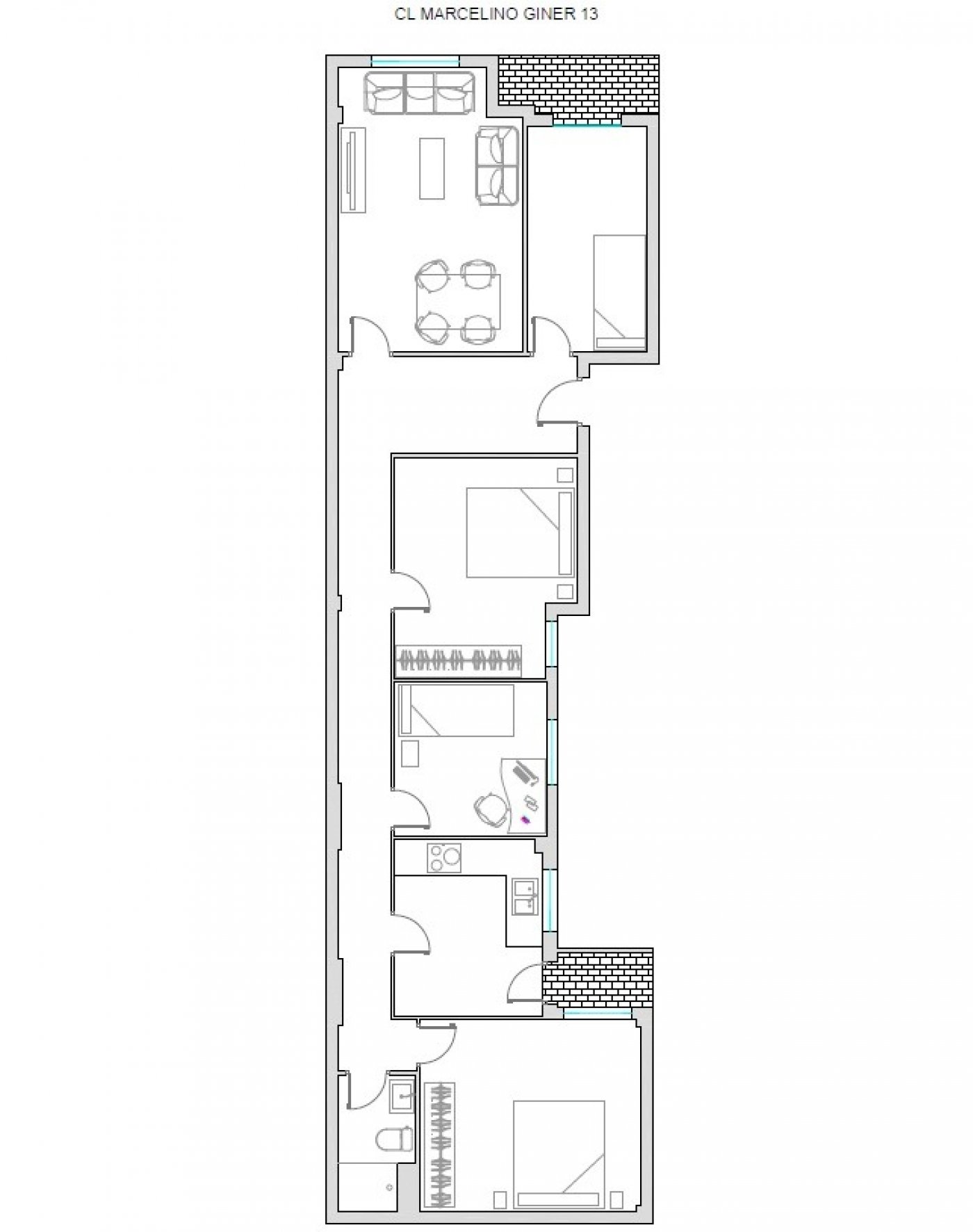
4 habs. 1 bañ. 88.00m2 Ref: FNG-08043B
Si estás pensando en hacer una inversión inmobiliaria, date una vuelta por Benimaclet. Es el barrio por excelencia para sacar una buena rentabilidad a tus ahorros. Su cercanía a la Universidad Politécnica y a las distintas facultades, hacen de este barrio uno de los más elegidos por los estudiantes.
Ahora te ofrecemos una vivienda de 4 dormitorios lista para ofrecerte suculentas cifras. Sus 4 dormitorios están alquilados a estudiantes, obteniendo una rentabilidad cercana al 8% anual.
Cuenta con una reciente reforma (salvo cocina), lo que hará que te olvides de engorrosas obras en mucho tiempo. Además, en patios cercanos se han instalado ascensores. ¿Te imaginas cómo cambiaría la cosa si instalaran ascensor aquí? Todo es proponerlo...
El piso se encuentra en una de las calles más tranquilas de la zona y su orientación Este - Oeste hace que entre la luz a raudales.
¿Quieres rentabilizar tus ahorros desde el mismo momento de la compar? Llámanos y podrás ver esta oportunidad..
-----------------------
Si eres agente inmobiliario y quieres visitar la vivienda con un cliente, no dudes en contactar. Estaremos encantados de atenderte. ¡Juntos, sumamos!
No obstante, esta agencia ha sido contratada para gestionar la venta de la vivienda de forma exclusiva, garantizando un servicio de calidad, sin interferencias de terceros. Por este motivo, se ruega no molestar a los propietarios, a los ocupantes del inmueble o a los vecinos.
Muchas gracias por tu comprensión.
El precio ofertado no incluye impuestos y gastos de compraventa, ni honorarios de la agencia inmobiliaria.
El anuncio no es vinculante, puede contener errores.
Leer más

Características

Tipo
Piso
Habitaciones
4
Baños
1
Planta
5
Superficie construida
88.00m2
Orientación
Este
Estado
Buen estado
Carpintería interior
Roble
Carpintería exterior
Aluminio/Climalit
Antigüedad
1970
IBI
0.00€
Gastos de comunidad
72€ al trimestre
Tipo calefacción
Suelo radiante
Tipo cocina
Independiente
Más características

Extras

Agua
Balcón
Calefacción
Galería
Luminoso
Luz
Califcación energética Aportado
Consumo kW h/m2 Año
Emisiones Kg CO2/m2 Año
A
Más eficiente
B
C
D
E
40
F
G
Menos eficiente
192
Elige tu oficina
Siempre podrás cambiar la oficina, desde nuestra Web. En la parte superior izquierda.

Las cookies son importantes para ti, influyen en tu experiencia de navegación. Usamos cookies técnicas y analíticas. Puedes consultar nuestra Política de cookies. Al hacer click en "Aceptar", consientes que todas las cookies se guarden en tu dispositivo o puedes configurarlas o rechazarlas.

Aceptar Configurar Rechazar