Vivienda gestionada por:
Libre
En venta
Alfafar, MEDITERRANEO 37
159.900 €
Descargar PDF Calcular hipoteca
%
años
Calcular

Tu hogar en Alfafar...

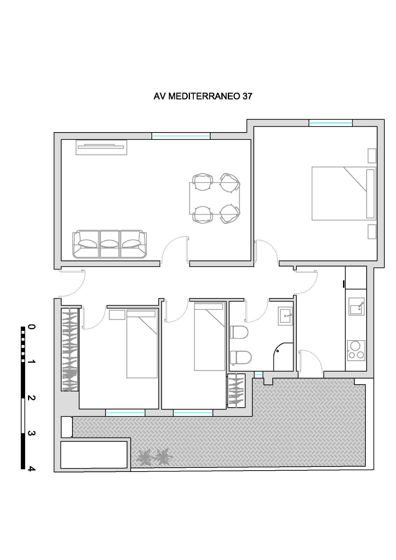
3 habs. 1 bañ. 79.00m2 Ref: FNG-08756B
Atención a esta vivienda en planta baja en Alfafar. Se ubica en la avenida Mediterráneo, una zona muy tranquila y con vistas directas al parque.
Tiene 3 dormitorios, 1 baño y una terraza interior de unos 10 m² perfecta para relajarte, poner plantas o disfrutarla todo el año.
La vivienda está totalmente reformada: Suelo de gres, Puertas de roble y ventanas de aluminio tipo Climalit, lista para entrar a vivir sin preocuparte de nada.
Una vivienda cómoda, luminosa y silenciosa, ideal si buscas calma sin salir del pueblo y con un espacio exterior que marca la diferencia.
***
Agencia Registrada con el Nº 5343 en el Registro Obligatorio de Agentes Inmobiliarios de la Comunitat Valenciana, según el DECRETO 98/2022, de 29 de julio, del Consell, por el que se regula el Registro de Agentes de Intermediación Inmobiliaria de la Comunitat Valenciana.
La documentación del inmueble ha sido revisada y estimamos que reúne todos los requisitos necesarios para ser comercializado.
El precio ofertado no incluye impuestos, gastos de compraventa ni honorarios de la agencia inmobiliaria.
Las medidas aquí expuestas han sido obtenidas del Catastro.
El anuncio no es vinculante, puede contener errores.
¿Tienes alguna duda? Consúltanos.
***
Los vendedores han confiado en este equipo para gestionar la venta del inmueble de forma exclusiva. Como no puede ser de otra forma, garantizamos un servicio de calidad, actuando en todo momento de forma transparente, ética y profesional. Así pues, se ruega la no interferencia de terceros y, sobre todo, no molestar a los propietarios, a los ocupantes del inmueble o a los vecinos. Muchas gracias por tu comprensión.
Leer más

Características

Tipo
Piso
Habitaciones
3
Baños
1
Planta
0
Superficie construida
79.00m2
Orientación
Norte
Estado
Reformado
Carpintería interior
Roble
Carpintería exterior
Aluminio/Climalit
Antigüedad
1972
IBI
182.00€
Gastos de comunidad
25€ al mes
Salón
1
Nº Plantas
3
Superficie terraza
15.00m2
Vistas
A la calle
Tipo exterior
Exterior
Tipo cocina
Independiente
Cocina
Amueblada
Más características

Extras

Agua
Armarios empotrados
Ascensor
Galería
Luminoso
Luz
Puerta blindada
Terraza
Trastero
Califcación energética Aportado
Consumo kW h/m2 Año
Emisiones Kg CO2/m2 Año
A
Más eficiente
B
C
D
E
F
46
G
Menos eficiente
243
Elige tu oficina
Siempre podrás cambiar la oficina, desde nuestra Web. En la parte superior izquierda.

Las cookies son importantes para ti, influyen en tu experiencia de navegación. Usamos cookies técnicas y analíticas. Puedes consultar nuestra Política de cookies. Al hacer click en "Aceptar", consientes que todas las cookies se guarden en tu dispositivo o puedes configurarlas o rechazarlas.

Aceptar Configurar Rechazar