Vivienda gestionada por:

OpenHouse

Jornada de puertas abiertas


¿Qué es esto?
Empieza en:
  • Días
  • Horas
  • Min
  • Seg
  • 522 personas se han interesado en este evento.
    Libre
    En venta
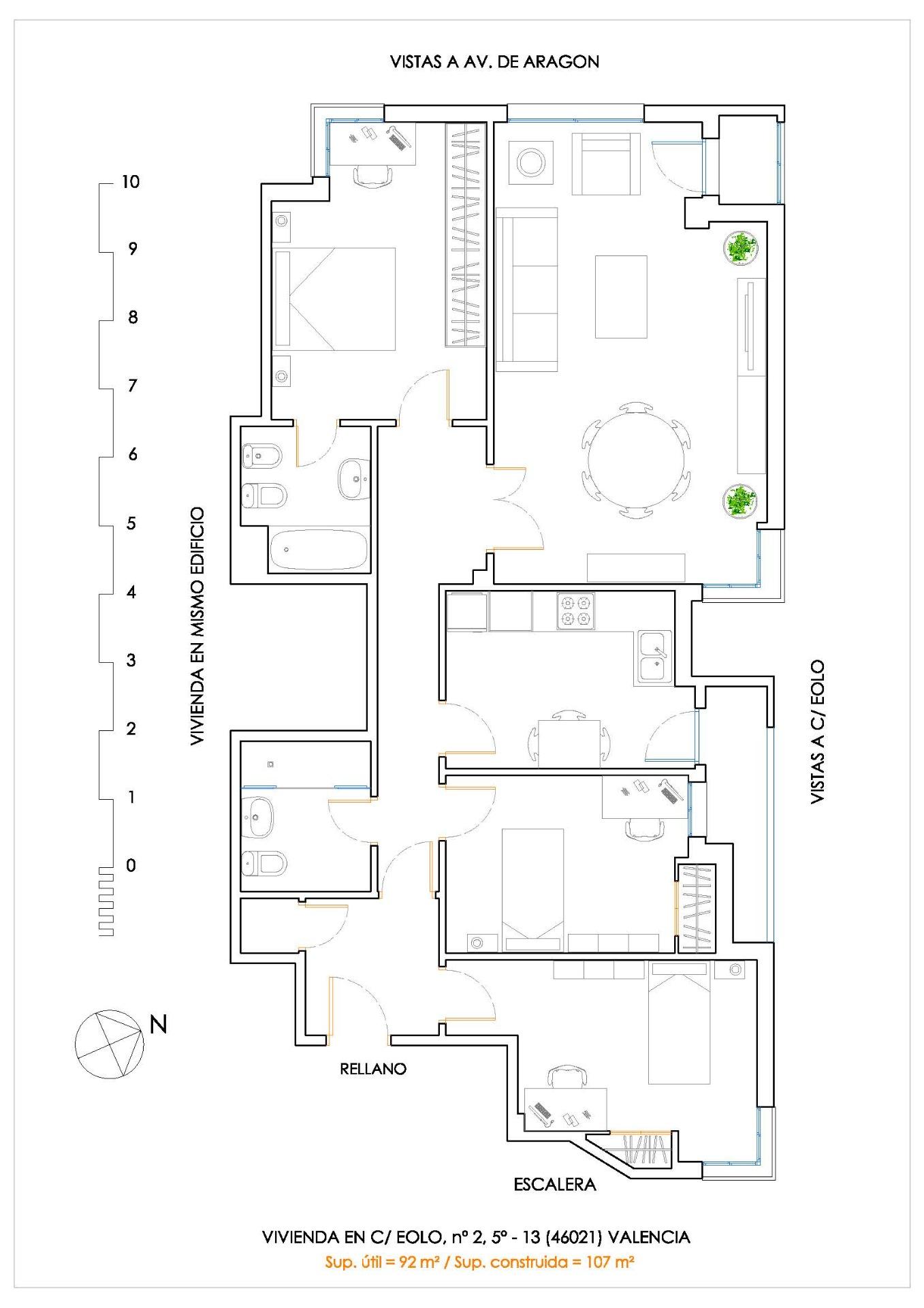
    Valencia, EOLO 2
    519.900 €
    Descargar PDF Calcular hipoteca
    %
    años
    Calcular

    El piso que esperabas...

    3 habs. 2 bañ. 104.00m2 Ref: FNG-08759B
    Arrancamos el año con uno de nuestros famosos Open House. El piso saldrá a la venta el próximo 30 de enero, día en el que se realizará una jornada de puertas abiertas para poder conocerlo con calma y descubrir todo su potencial. Apúntate y no te pierdas esta oportunidad.
    ***
    Este piso es de esos que tienen ubicación, luz y muchas posibilidades. Está en la zona de Mestalla, en la calle Eolo nº 2, esquina con avenida Aragón, una de las zonas más demandadas de Valencia. Frente al estadio de fútbol y a un paso del antiguo cauce del río, perfecto para pasear, hacer deporte o simplemente disfrutar del entorno.
    Se trata de una quinta planta con ascensor, muy luminosa, ya que hace chaflán y es totalmente exterior. El salón y el dormitorio principal tienen vistas a la avenida Aragón, mientras que el resto de estancias dan a la calle Eolo, lo que garantiza luz natural durante todo el día. La vivienda cuenta con 3 dormitorios y 2 baños, uno de ellos en suite, ideal para el dormitorio principal.
    El piso está en muy buen estado de conservación, aunque ofrece una gran oportunidad para actualizar cocina y baños y adaptarlo completamente a tu estilo. La cocina dispone además de galería exterior, algo muy práctico en el día a día.
    Un valor añadido importantísimo en esta zona es que incluye plaza de garaje en el mismo edificio, un auténtico lujo en Mestalla.
    No lo dudes y ven a visitarla. ¡Te encantará!
    ***
    Agencia Registrada con el Nº 5343 en el Registro Obligatorio de Agentes Inmobiliarios de la Comunitat Valenciana, según el DECRETO 98/2022, de 29 de julio, del Consell, por el que se regula el Registro de Agentes de Intermediación Inmobiliaria de la Comunitat Valenciana.
    La documentación del inmueble ha sido revisada y estimamos que reúne todos los requisitos necesarios para ser comercializado.
    El precio ofertado no incluye impuestos, gastos de compraventa.
    No incluye los honorarios de la agencia inmobiliaria a cargo del comprador (4% + IVA).
    Las medidas aquí expuestas han sido obtenidas del Catastro.
    El anuncio no es vinculante, puede contener errores.
    ¿Tienes alguna duda? Consúltanos.
    ***
    Los vendedores han confiado en este equipo para gestionar la venta del inmueble de forma exclusiva. Como no puede ser de otra forma, garantizamos un servicio de calidad, actuando en todo momento de forma transparente, ética y profesional. Así pues, se ruega la no interferencia de terceros y, sobre todo, no molestar a los propietarios, a los ocupantes del inmueble o a los vecinos. Muchas gracias por tu comprensión.
    Leer más

    Características

    Tipo
    Piso
    Habitaciones
    3
    Baños
    2
    Planta
    5
    Superficie construida
    104.00m2
    Orientación
    Oeste
    Estado
    Entrar a vivir
    Carpintería interior
    Roble
    Carpintería exterior
    Aluminio
    Antigüedad
    1986
    IBI
    550.00€
    Gastos de comunidad
    205€ al trimestre
    Parking
    1
    Vistas
    A la calle
    Tipo exterior
    Todo exterior
    Tipo cocina
    Independiente
    Cocina
    Amueblada
    Instalación eléctrica
    220V
    Más características

    Extras

    Ascensor
    Balcón
    Calefacción
    Esquina
    Galería
    Garaje
    Luminoso
    Parking
    Puerta blindada
    Califcación energética Aportado
    Consumo kW h/m2 Año
    Emisiones Kg CO2/m2 Año
    A
    Más eficiente
    B
    C
    D
    E
    144
    30
    F
    G
    Menos eficiente
    Elige tu oficina
    Siempre podrás cambiar la oficina, desde nuestra Web. En la parte superior izquierda.

    Las cookies son importantes para ti, influyen en tu experiencia de navegación. Usamos cookies técnicas y analíticas. Puedes consultar nuestra Política de cookies. Al hacer click en "Aceptar", consientes que todas las cookies se guarden en tu dispositivo o puedes configurarlas o rechazarlas.

    Aceptar Configurar Rechazar