Vivienda gestionada por:
Libre
En venta
Alboraya, partida calvet
400.000 €
Descargar PDF Calcular hipoteca
%
años
Calcular

Casa de huerta

6 habs. 2 bañ. 273m2 Ref: ALB_2043
Presentamos una espectacular propiedad ubicada en el corazón de la huerta de Alboraya. Este inmueble, disponible para la venta, cuenta con una superficie de 273 metros cuadrados, al ser esquinera cuenta con orientaciones Este-Oeste-Norte.
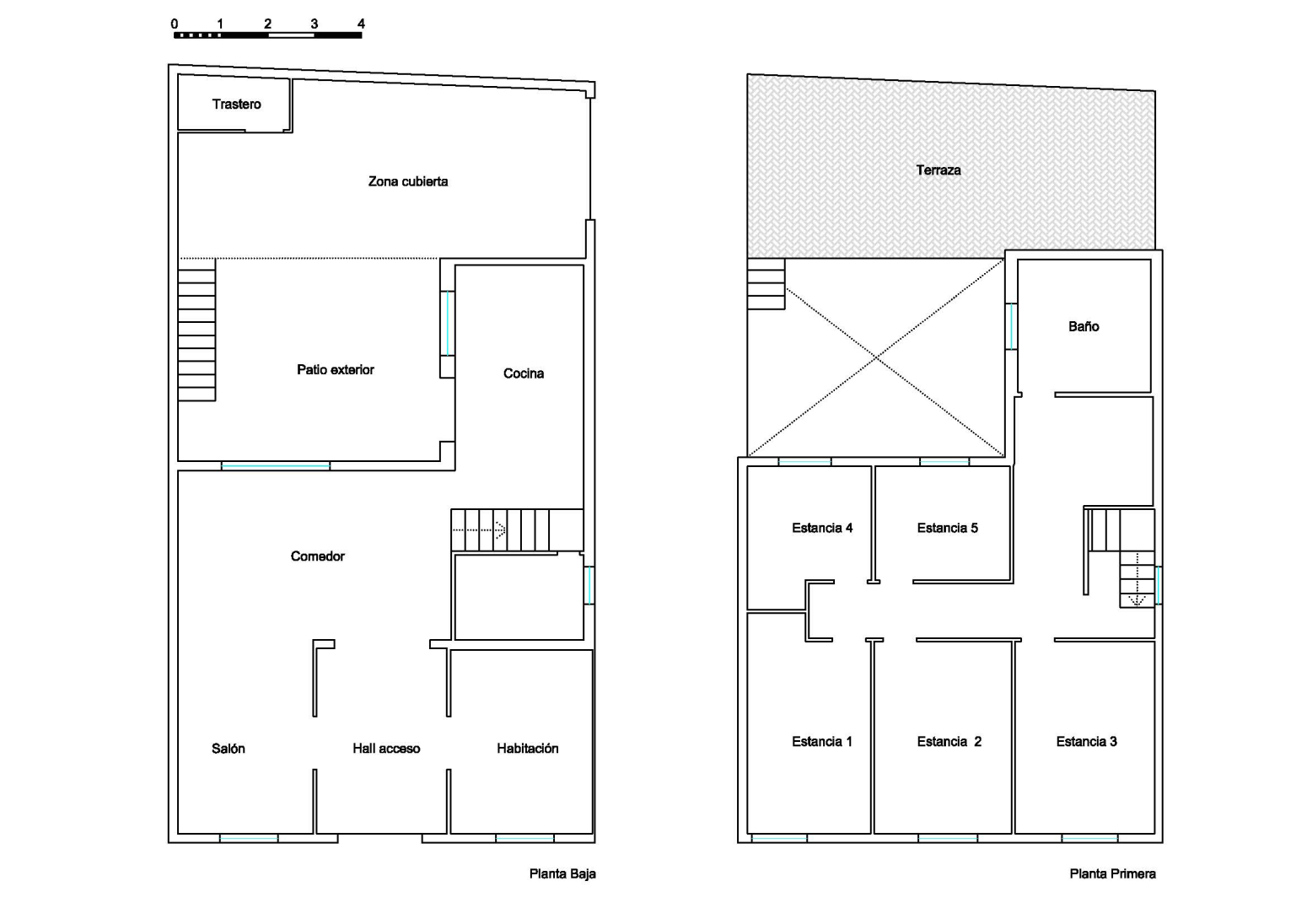
La casa de huerta (rústica) se compone de 2 plantas con la siguiente distribución actual:
Planta baja: Salón-comedor, amplia cocina, baño y habitación doble. Un Patio exterior de aprox. 80 m2 con acceso a una terraza en planta primera.Planta primera: 5 estancias que se podrían destinar como habitaciones y un baño. 
A tan solo unos minutos a pie del casco urbano, podrás disfrutar de la paz de la huerta sin renunciar a la comodidad de tener todos los servicios esenciales al alcance: comercios, colegios, transporte público, centros de salud ....
La casa se encuentra para reformar, permitiendo la posibilidad de personalizar algunos espacios según las propias necesidades y gustos personales hace que esta oferta sea aún más atractiva. Imagina tener un hogar donde cada rincón puede ser testigo de tus momentos más preciados, adaptándose a tus sueños y proyectos futuros.
Por todo ello, esta es una oportunidad excepcional para adquirir una propiedad cargada de historia y estilo. Esta casa, que combina el encanto del pasado con las comodidades del presente, es una inversión segura para el futuro. Te invitamos a visitar esta joya arquitectónica y sentir por ti mismo la calidez y el confort que ofrece.
No dejes pasar esta oportunidad única de hacer de esta casa la próxima sede de tus sueños y proyectos. Reserve una visita hoy y descubre el potencial que este maravilloso inmueble tiene para ofrecer. La casa de tus sueños te está esperando en Alboraya.
-----
Agencia Registrada con el Nº 2960 en el Registro Obligatorio de Agentes Inmobiliarios de la Comunitat Valenciana, según el DECRETO 98/2022, de 29 de julio, del Consell, por el que se regula el Registro de Agentes de Intermediación Inmobiliaria de la Comunitat Valenciana.    La documentación del inmueble ha sido revisada y estimamos que reúne todos los requisitos necesarios para ser comercializado.    
El precio ofertado no incluye impuestos, gastos de compraventa ni honorarios de la agencia inmobiliaria.    
Las medidas aquí expuestas han sido obtenidas del Catastro.    
El anuncio no es vinculante, puede contener errores.   
¿Tienes alguna duda? Consúltanos.    
***    
Los vendedores han confiado en este equipo para gestionar la venta del inmueble de forma exclusiva. Como no puede ser de otra forma, garantizamos un servicio de calidad, actuando en todo momento de forma transparente, ética y profesional. Así pues, se ruega la no interferencia de terceros, y sobre todo, no molestar a los propietarios, a los ocupantes del inmueble o a los vecinos. Muchas gracias por tu comprensión.
 
Leer más

Características

Tipo
Casas o chalets
Habitaciones
6
Baños
2
Planta
Superficie construida
273m2
Orientación
Norte::Este::Oeste
Estado
A reformar
Carpintería interior
Carpintería exterior
Madera
Antigüedad
1900
IBI
0.00€
Gastos de comunidad
0€ al mes
Superficie parcela
234m2
Más características

Extras

Barbacoa
Chimenea
Garaje opcional
Luz
Terraza
Trastero
Califcación energética Aportado
Consumo kW h/m2 Año
Emisiones Kg CO2/m2 Año
A
Más eficiente
B
C
D
E
F
G
Menos eficiente
345
68
Elige tu oficina
Siempre podrás cambiar la oficina, desde nuestra Web. En la parte superior izquierda.

Las cookies son importantes para ti, influyen en tu experiencia de navegación. Usamos cookies técnicas y analíticas. Puedes consultar nuestra Política de cookies. Al hacer click en "Aceptar", consientes que todas las cookies se guarden en tu dispositivo o puedes configurarlas o rechazarlas.

Aceptar Configurar Rechazar