Vivienda gestionada por:

OpenHouse

Jornada de puertas abiertas


¿Qué es esto?
Empieza en:
  • Días
  • Horas
  • Min
  • Seg
  • 458 personas se han interesado en este evento.
    Libre
    En venta
    Valencia, POETA EDUARDO BUIL 3
    284.900 €
    Descargar PDF Calcular hipoteca
    %
    años
    Calcular

    Unas vistas y un hogar en Benimaclet

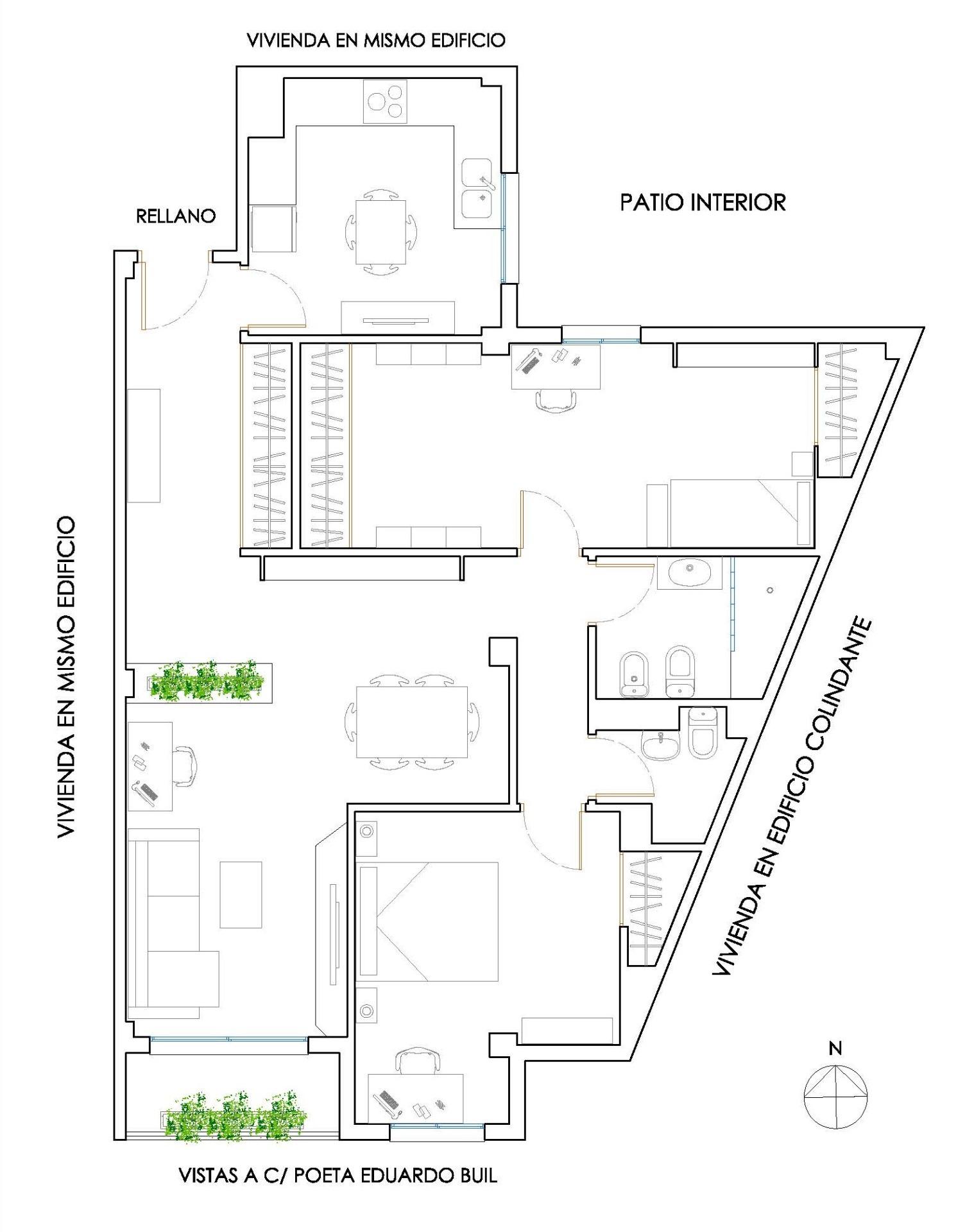
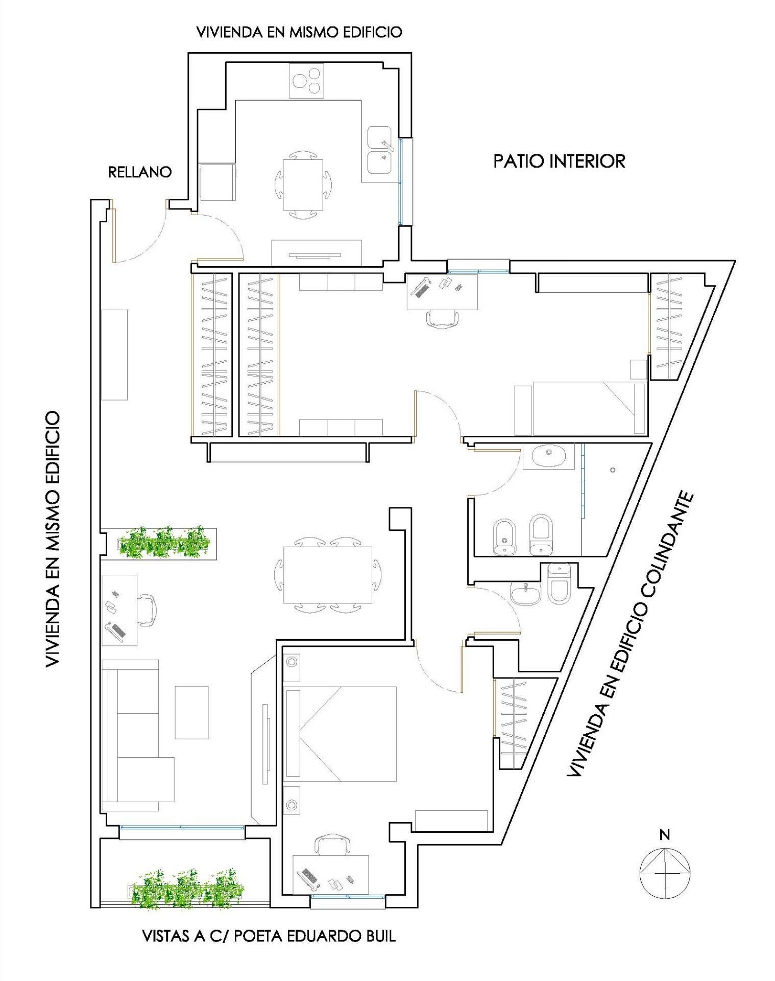
    2 habs. 2 bañ. 91.00m2 Ref: FNG-08773B
    Próximo Open House de Finkas ng el día 13 de marzo en la calle Poeta Eduardo Buil. Sí, sí, ¡en Benimaclet! Es una jornada de puertas abiertas que no te puedes perder si estás buscando dar el paso hacia tu nuevo proyecto de vida. ¡Apúntate cuanto antes!
    Se trata de una séptima y última planta orientada al sur, lo que se traduce en luz natural y unas vistas abiertas, despejadas y espectaculares de Benimaclet. Tiene una distribución perfecta para tu vida diaria:
    •2 dormitorios dobles, amplios y luminosos.
    •Baño completo + aseo.
    •Gran cocina super espaciosa con zona office.
    •Salón comedor con balcón exterior a la calle.
    •Distribución muy bien aprovechada, con casi nada de pasillo, lo que hace que cada metro cuadrado tenga sentido.
    •Lo mejor: no hay que hacer ninguna reforma. Está totalmente reformada, lista para entrar a vivir. ¡Fuera dolores de cabeza!
    ¿Y qué decir de Benimaclet? Un barrio con personalidad y vida propia.
    Este piso se encuentra en Camí de Vera, dentro de Benimaclet, un área que combina lo mejor de vivir en una ciudad con la calidez de un barrio con alma de pueblo. Aquí sentirás que todo está a mano: comercio local, cafeterías, tiendas, servicios, supermercados… y siempre con un ambiente cercano y familiar donde la gente se saluda por la calle.
    La zona está muy bien comunicada con Valencia:
    •Metro (líneas 3 y 9) y tranvía a pocos minutos caminando.
    •Varias líneas de autobús que te llevan a cualquier punto de la ciudad.
    Benimaclet es perfecto para parejas jóvenes y familias que quieren calidad de vida a diario: pasear por plazas con encanto, disfrutar de parques cercanos, cafés con terraza y un ritmo tranquilo estando en la propia ciudad.
    No lo dejes pasar. Ven al Open House el 13 de marzo y descubre de primera mano el que puede ser tu próximo hogar: Una vivienda con luz, diseño, comodidad y en un barrio con una identidad especial.
    ***
    Agencia Registrada con el Nº 5343 en el Registro Obligatorio de Agentes Inmobiliarios de la Comunitat Valenciana, según el DECRETO 98/2022, de 29 de julio, del Consell, por el que se regula el Registro de Agentes de Intermediación Inmobiliaria de la Comunitat Valenciana.
    La documentación del inmueble ha sido revisada y estimamos que reúne todos los requisitos necesarios para ser comercializado.
    El precio ofertado no incluye los honorarios de la agencia a cargo del comprador, que ascienden al 4% del precio final del inmueble.
    El precio ofertado tampoco incluye ni los gastos de notaría y de registro de la propiedad (que están sujetos a aranceles y varían dependiendo del precio de venta), ni los impuestos (que en la Comunidad Valenciana varían dependiendo del precio del inmueble y de las características personales del comprador).
    Las medidas aquí expuestas han sido obtenidas del Catastro.
    El anuncio no es vinculante, puede contener errores.
    ¿Tienes alguna duda? Consúltanos.
    ***
    Los vendedores han confiado en este equipo para gestionar la venta del inmueble de forma exclusiva. Como no puede ser de otra forma, garantizamos un servicio de calidad, actuando en todo momento de forma transparente, ética y profesional. Así pues, se ruega la no interferencia de terceros y, sobre todo, no molestar a los propietarios, a los ocupantes del inmueble o a los vecinos. Muchas gracias por tu comprensión.
    Leer más

    Características

    Tipo
    Piso
    Habitaciones
    2
    Baños
    2
    Planta
    7
    Superficie construida
    91.00m2
    Orientación
    Sur
    Estado
    Reformado
    Carpintería interior
    Lacado Blanco
    Carpintería exterior
    Climalit
    Antigüedad
    1978
    IBI
    210.00€
    Gastos de comunidad
    150€ al trimestre
    Vistas
    A la calle
    Tipo exterior
    Exterior
    Tipo cocina
    Independiente
    Cocina
    Amueblada
    Instalación eléctrica
    220V
    Más características

    Extras

    Agua
    Armarios empotrados
    Ascensor
    Balcón
    Luminoso
    Luz

    Entorno

    Vistas despejadas
    Califcación energética Aportado
    Consumo kW h/m2 Año
    Emisiones Kg CO2/m2 Año
    A
    Más eficiente
    B
    C
    D
    E
    107
    21
    F
    G
    Menos eficiente
    Elige tu oficina
    Siempre podrás cambiar la oficina, desde nuestra Web. En la parte superior izquierda.

    Las cookies son importantes para ti, influyen en tu experiencia de navegación. Usamos cookies técnicas y analíticas. Puedes consultar nuestra Política de cookies. Al hacer click en "Aceptar", consientes que todas las cookies se guarden en tu dispositivo o puedes configurarlas o rechazarlas.

    Aceptar Configurar Rechazar